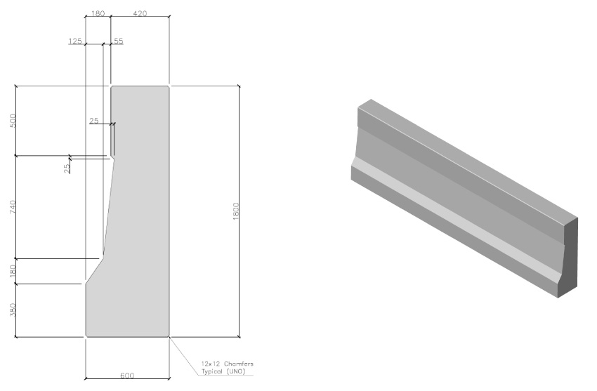
Mould Type ‘L’ Median Barriers

Typical details:
| Concrete Grade (Typ.): | S40 |
| Typical Length: | 6.0m Nom. |
| Cross Sectional Area: | 855.7 x 10³ mm² |
| Mass (Approx.): | 2.23 t/m |

| Concrete Grade (Typ.): | S40 |
| Typical Length: | 6.0m Nom. |
| Cross Sectional Area: | 855.7 x 10³ mm² |
| Mass (Approx.): | 2.23 t/m |