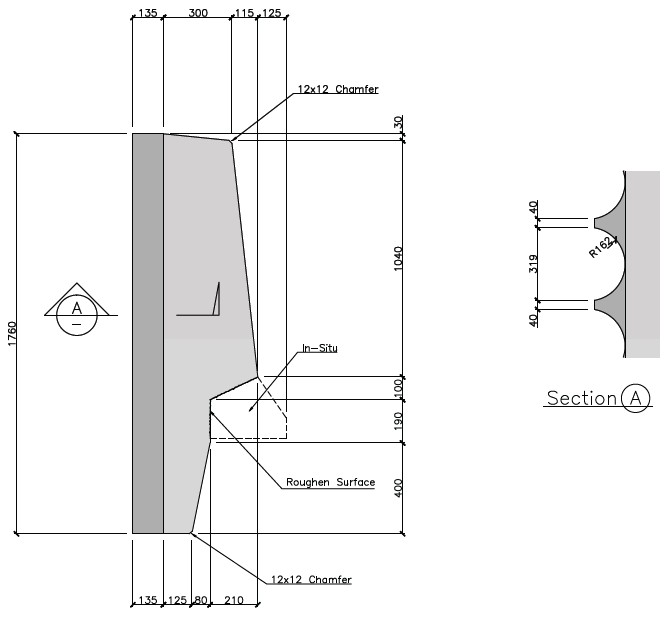
Mould Type ‘C’ On Structure Parapet

Typical details:
| Concrete Grade (Typ.): | S40 |
| Typical Length: | 6.0m Nom. |
| Cross Sectional Area: | 512.3 x 10³ mm² |
| Mass (Approx.): | 1.54 t/m |

| Concrete Grade (Typ.): | S40 |
| Typical Length: | 6.0m Nom. |
| Cross Sectional Area: | 512.3 x 10³ mm² |
| Mass (Approx.): | 1.54 t/m |