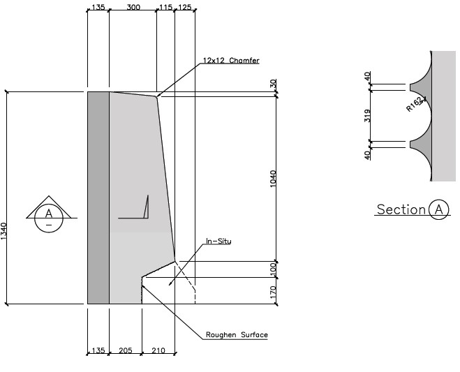
Mould Type ‘D’ On Structure Parapet

Typical details:
| Concrete Grade (Typ.): | S40 |
| Typical Length: | 6.0m Nom. |
| Cross Sectional Area: | 442.1 x 10³ mm² |
| Mass (Approx.): | 1.31 t/m |

| Concrete Grade (Typ.): | S40 |
| Typical Length: | 6.0m Nom. |
| Cross Sectional Area: | 442.1 x 10³ mm² |
| Mass (Approx.): | 1.31 t/m |